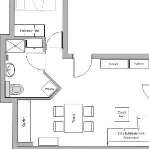
Offener Wohn-/Essbereich
Moderne Holzmöbel, kombiniert mit Ledersofa und Récamiere bieten ein modernes und doch behagliches Wohngefühl. Esstisch mit Sitzgelegenheit für 4 Personen und bei Bedarf zusätzlich 2 Kinderstühlen. Das Ledersofa bietet eine weitere Schlafgelegenheit für maximal zwei Personen (1 Erwachsener, 2 Kinder).
Küche
Moderne Einbauküche, komplett ausgestattet mit:
Spülmaschine
2 Platten Glaskeramik-Kochfeld
Kühlschrank mit Gefrierfach, sowie Toaster und Mikrowelle
Senseo-Kaffeemaschine und Wasserkocher (incl. Teebeuteln)
Reinigungsutensilien (Lappen, Spülmittel, Müllbeutel)
TV, HiFi und WLAN
Ein LED-SmartTV mit Satellitenempfang und eine HiFi Anlage mit CD-Player und Internet-Radio sind in der Wohnung vorhanden.
Gratis Internetzugang per WLAN. Zugangsdaten dazu befinden sich in Informations-Mappe in der Wohnung.
Schlafzimmer
Schlafzimmer mit 160 cm x 200 cm Doppelbett.
Das Bett ist leicht höher für den bequemen Einstieg, zudem können Sie unter dem Bett auch ihre Koffer und Taschen verstauen. Dazu ein grosser Kleiderschrank. Die Rollläden an den Fenstern sorgen für eine erholsame Nachtruhe.
Natürlich ausgestattet mit Allergiker-Bettdecken und -Kissen.
Modernes Badezimmer mit Dusche
Badezimmer mit viel Ablagefläche, flauschigen Handtüchern, erhöhtes WC, Kosmetikspiegel, Fön, Handseife, Hocker für Kinder. Durch die Fussbodenheizung in jeder Jahreszeit sehr angenehm.
Dazu eine flache, (fast) ebenerdige, leicht zugängliche Dusche.
Waschmaschine
Im Bad in der Wohnung stehen Ihnen Waschmaschine und Trockner zur exclusiven Verfügung. Wir bitten, für die Nutzung der Waschmaschine einen Unkostenbeitrag von 4 EUR pro Waschgang zu hinterlassen.
Klick zum Vergrössern
Wohnung
Wohnbereich Innenhof
Wohnbereich
Tisch
Küche
Wohnbereich 2
Schlafzimmer Bett 160 x 200
Schlafzimmerschrank
Schlafzimmer
Badezimmer
Spiele
Wein
Blick in Innenhof
Klick zum Vergrössern